ساختمان تجاری اداری میرزای شیرازی

ساختمان تجاری اداری میرزای شیرازی - جزئیات پروژه

کارفرما : شرکت رامان

محل پروژه : تهران،ایران

کاربری : مجتمع تجاری اداری

وضعیت : درحال ساخت

مساحت : 3000مترمربع

زمان : 1394

معمار : الهام ملااکبری داریان، سایه اخباری

تیم طراحی : محمد عبدالله زاده ، سینا زینگر،سپیده دستفال،فرهاد خدمتگزار، ریحانه مختاری

مدلسازی سه بعدی : فرزاد جعفرزاده

:

ساختمان تجاری اداری میرزای شیرازی - توضیحات پروژه

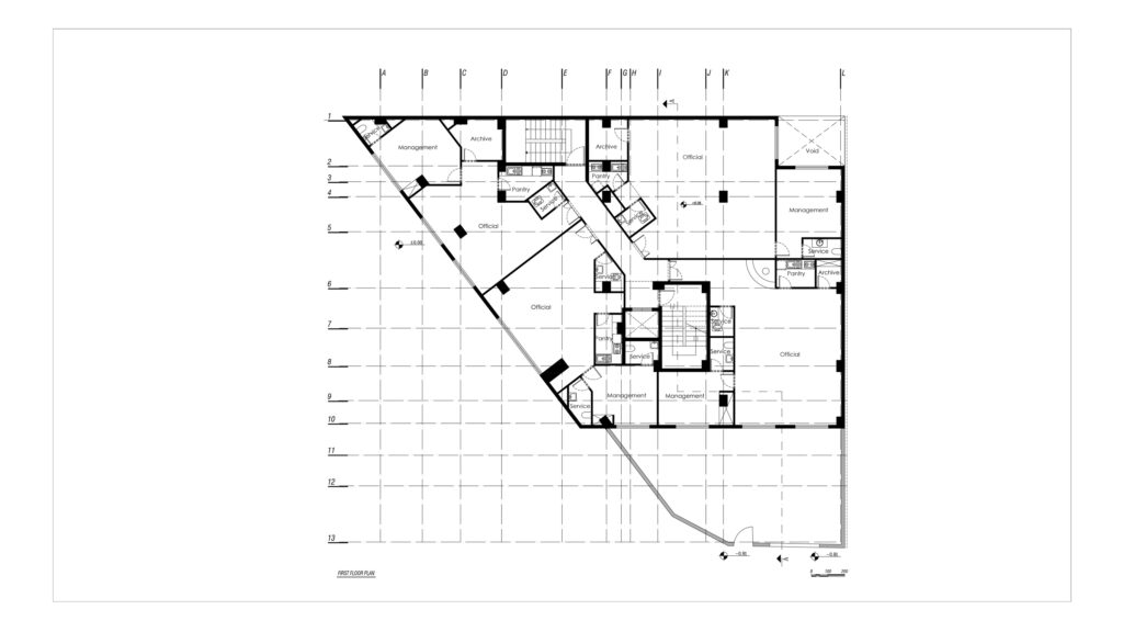
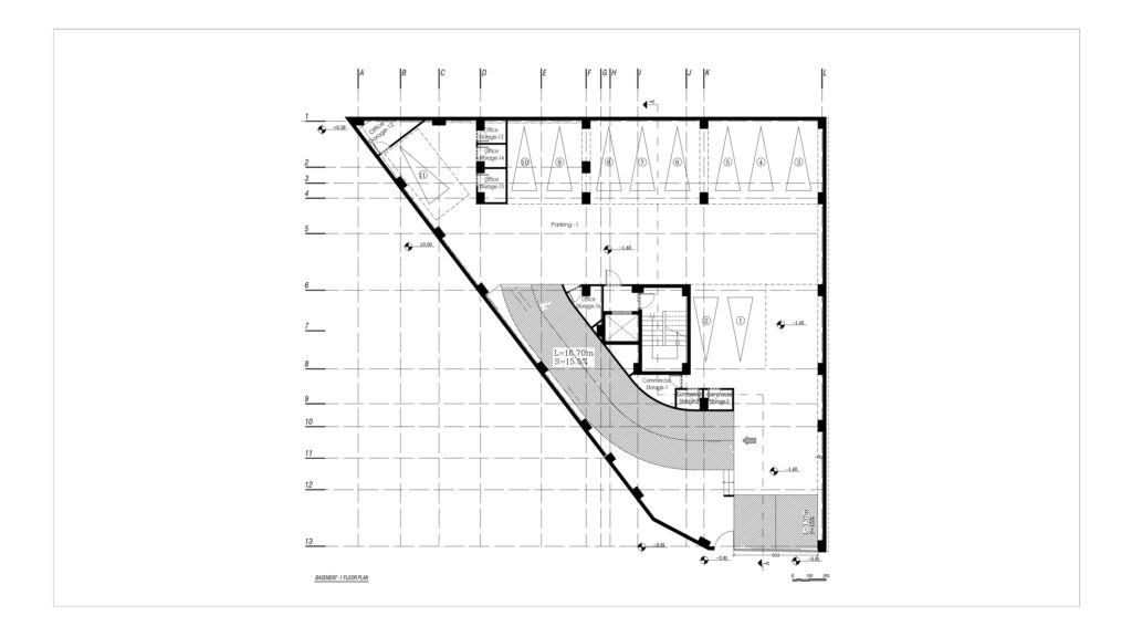
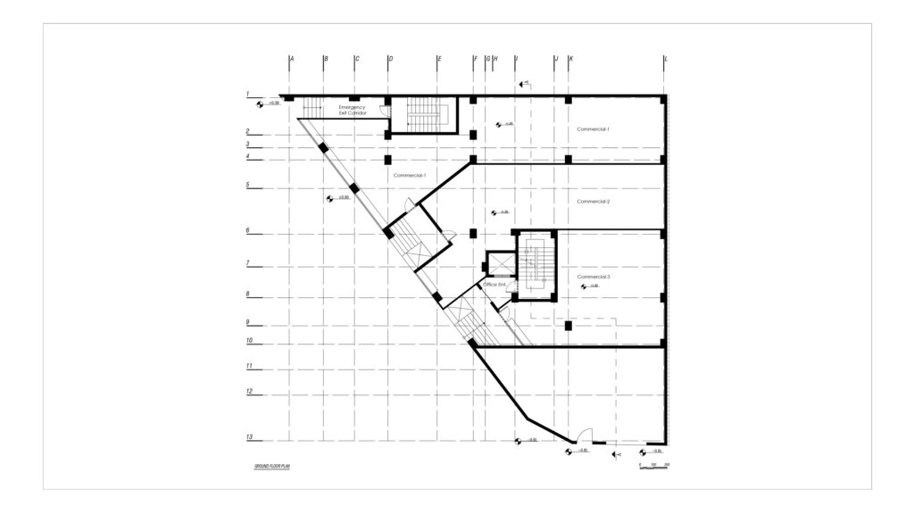
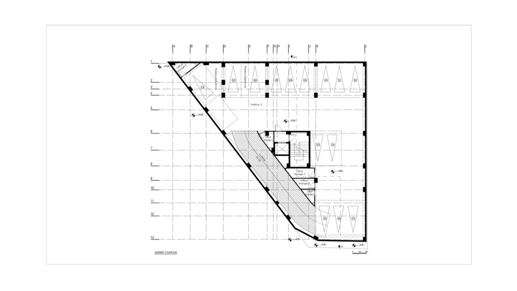
این پروژه تجاری-اداری به مساحت 3000 مترمربع در خیابان کریم خان تهران واقع شده است. این مجموعه شامل 7 طبقه می باشد که در طبقه همکف واحدهای تجاری و در طبقات بالا واحدهای اداری قرارگرفته اند. در طبقه همکف در مجموع 3 واحد تجاری طوری  تعریف شده که هریک دسترسی مستقیم و مستقل به خیابان اصلی را داشته باشند. طبقات اداری دارای ورودی و لابی مجزا هستند ودر 4طبقه بالای طبقه همکف قرار گرفته اند که به ترتیب از پایین به سمت بالا از سطح اشغال و تراکم ساختمان کاسته می شود. چون ساختمان مذکور در تقاطع قرار گرفته در طبقات بالا عقب نشینی داشته تا ازنظر سیمای بصری سنگینی توده ساختمان آزاردهنده نبوده و در ضمن ،با ایجاد بام های سبز در طبقات اداری به هماهنگی بیشتر ساختمان با فضای شهری پرداخته شده است. در طراحی نما تلاش شد تا با ایجاد تم معماری ایرانی  به کمک فاکتورهای نور ومتریال های شفاف با ایجاد  شفافیت در کنار بام های سبز کیفیت مطلوبی ایجاد شده و فضاهای سبز طوری در نظر گرفته شده تا پرسنل بخش اداری بتوانند در ساعات کاری طول روز به خوبی با این فضا ارتباط برقرارکرده و از این فضای سبز تعریف شده بهره لازم را ببرند. همچنین به دلیل وجود شکست ها و زاویه های تند محل تقاطع ،طراحی نمای ساختمان به گونه ای در نظر گرفته شد تا وجوه مختلف و  خط آسمان بنا  توسط قابی پیوسته تعریف شده تا این طریق  علاوه بر اتصال وجوه مختلف کار، کلیت نمای بنا نیز در این قاب بسته شود.