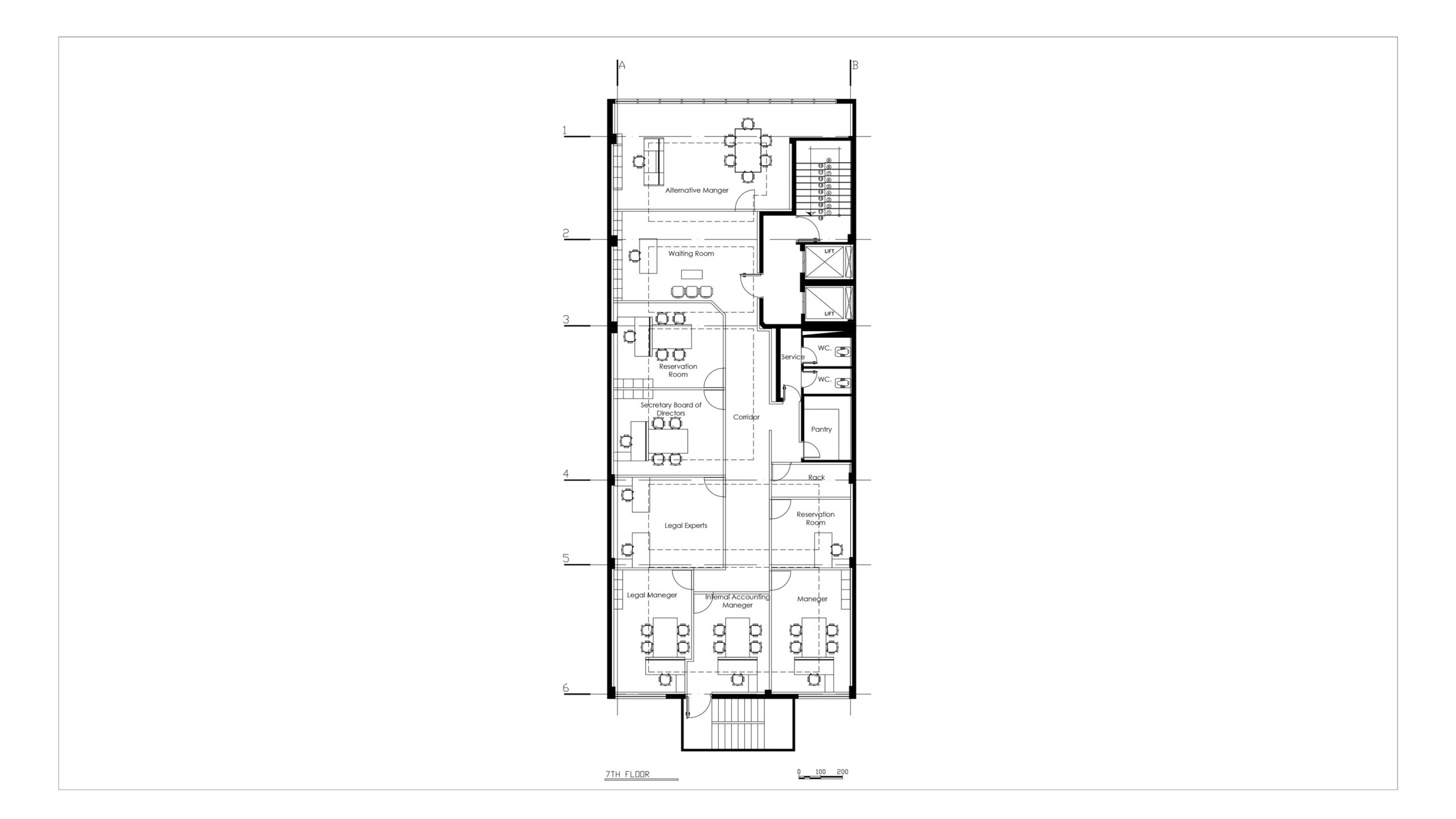
7th

20/10/2025