Menu
Projects
About
Home
Projects
About
Client
Blog
Contact
Farsi
Follow us on :
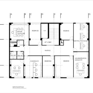
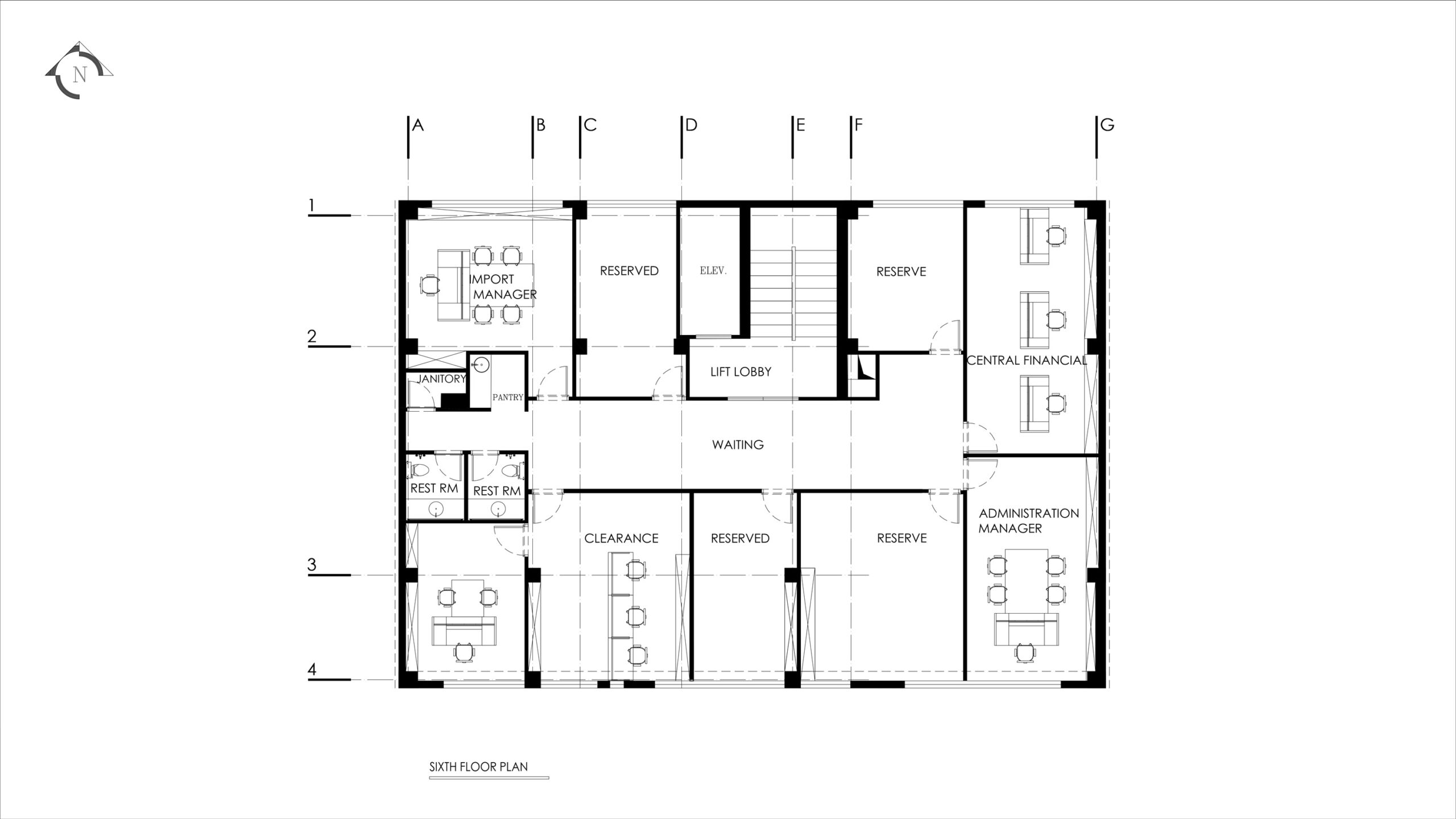
6TH
20/10/2025